Vila Beatrice
/
2 - APARTMÁN s veľkým balkónom
2 - APARTMÁN s veľkým balkónom
460 500 € finálna cena
+2



+2

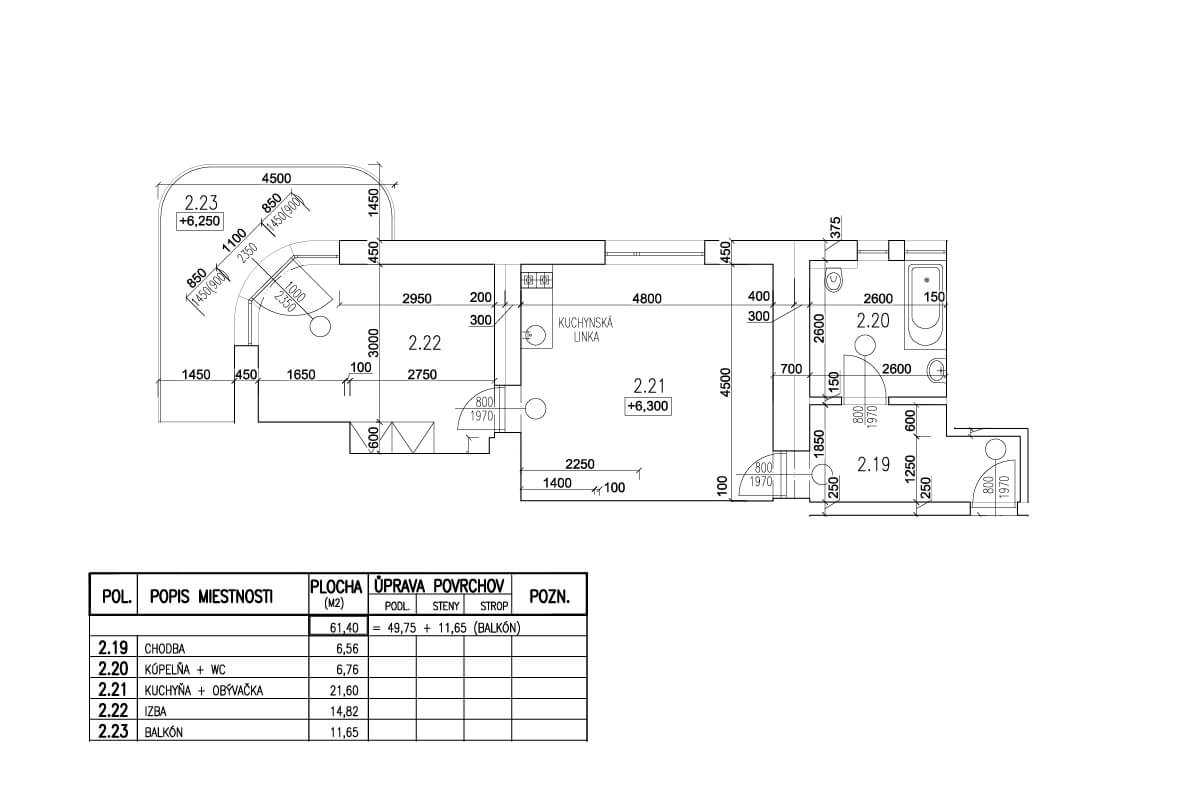
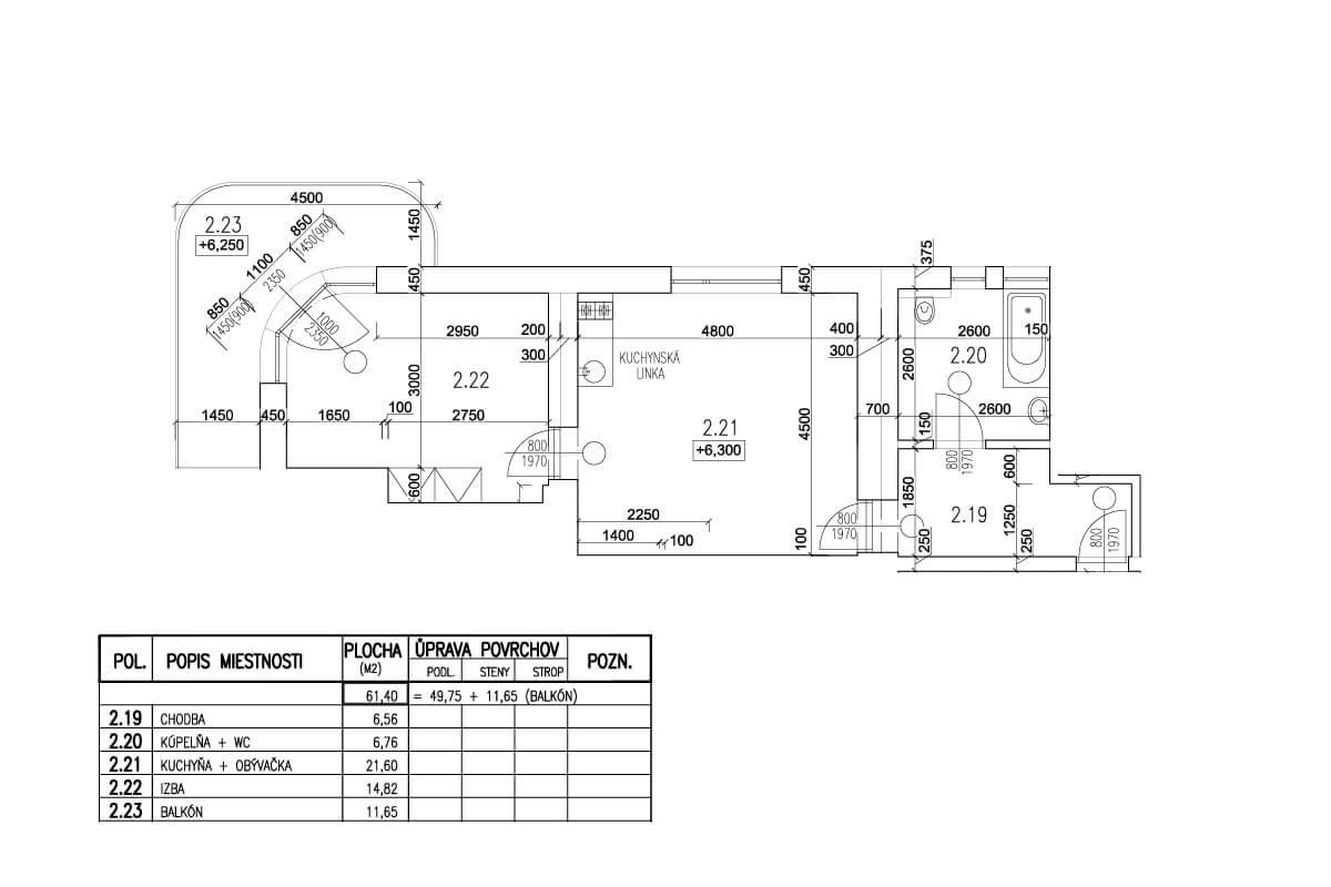
APARTMÁN č.2 je jednopodlažný apartmán s veľkým balkónom a orientáciou na juhozápad.
Po vstupe do apartmánu sa nachádzate v chodbe so vstupom do kuchyne a kúpeľne s toaletou. Vstup do izby vedie cez kuchyňu s obývačkou a vstup na balkón cez izbu.
Apartmán nesie nádych modernej horskej chaty a je kompletne zariadený.
izba, kúpeľňa s WC, kuchyňa s obývačkou, balkón, chodba.
61,40m² (Apartmán = 49,72m² + Balkón = 11,65m²)
Juh/Západ
Jednopodlažný apartmán
3. nadzemné podlažie
Virtuálna prehliadka

Pôdorys
apartmánu
Predstavujeme Vám exkluzívnu nehnuteľnosť vo Vysokých Tatrách - Vila Beatrice, ktorá je súčasťou rezortu Beatrice a patrí medzi najatraktívnejšie zariadenia APLEND Apartments & Resorts.
Vila prešla kompletnou rekonštrukciou, vďaka čomu získala svieži, moderný vzhľad. Všetky apartmány vo vile sú priestranné a plne vybavené. Každý apartmán má vlastnú kuchynku, obývaciu izbu so satelitnou TV, kúpeľňu s vaňou, bezplatné internetové pripojenie.
Takmer všetky apartmány disponujú balkónom a niektoré apartmány sú mezonetového typu.
Poloha vily je jednou z jej hlavných predností. Nachádza sa len pár minút chôdze od zastávky Tatranských elektrických železníc a centra Tatranskej Lomnice. Zázemie rezortu zahŕňa raňajkovú miestnosť, detský kútik, vonkajšie posedenie v teplých mesiacoch, parkovanie a nabíjaciu stanicu pre elektromobily.
Vila Beatrice je ústrednou budovou rezortu, do ktorého patrí aj Vila Júlia a Vila Magnólia. Všetky objekty sa nachádzajú v pešej vzdialenosti. Recepcia a správa je zabezpečená personálom APLEND v neďalekom Hoteli Lujza Major.
Staňte sa majiteľom jedinečnej nehnuteľnosti, ktorá kombinuje komfort, výnimočnú lokalitu a investičný potenciál.
Prenájom apartmánu: O dlhodobý prenájom a prevádzku Vášho nového apartmánu sa bude starať spoločnosť APLEND, ktorá prevádzkuje dovolenkové apartmány už od roku 2010. Výhodou je aj moderný “majiteľský portál”, kde vidíte v aktuálnom čase všetky potrebné detaily ohľadom vyťažovania apartmánu.
Zobraziť viac
Máte záujem ?
Neváhajte nás kontaktovať, radi s vami preberieme ďalšie kroky.

Pôdorys
apartmánu
Máte záujem ?
Neváhajte nás kontaktovať, radi s vami preberieme ďalšie kroky.
